Ferretti 740

Ferretti 740 review from Genoa Boat Show 2009

The Ferretti 740 has been built to replace the hugely popular, and best-selling 731, so Ferretti
know they have to get it right with this one.

First impressions suggest they’ve done just that, the interior is plush but extremely comfortable, it’s luxurious but invitingly cosy.

There are new fabrics and materials which add to the relaxed theme like the ash wood and light fabric sofas which forgo leather for a smart, hardwearing cloth.

Head forward and there is a free-standing glass dining table next to the galley bulkhead, which can be specified with a piece of individual art by an artist of the owners choice.

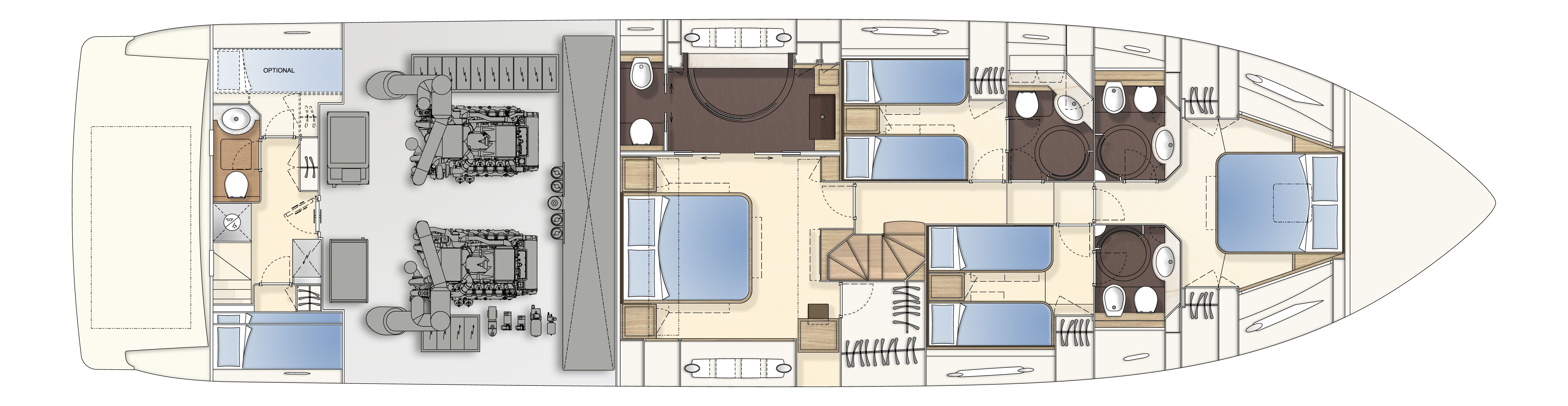
The galley can be completely sealed to separate crew and guests, and a door also leads straight to the bridge which can also be cut off from the guests in the saloon. 

Recommended videos for you

There is a small dinette to starboard of the helm so the skipper can enjoy breakfast or a snack whilst on watch.

On deck, the aft cockpit is dedicated to a large and comfortable seating area, but a really neat touch is the fold-down bench seat in the transom, which means guests have a comfortable place to sit and look out over the water and take a dip from.

It’s not often that the owner’s cabin is over-shadowed by its ensuite bathroom but this is what has happened on the Ferretti 740.

The shower takes central stage on the port side and is placed at sea level right next to the huge topside windows.

Standing in there it feels like you are having a shower standing on the surface of the sea – doing so in a crystal blue water would be quite a feeling. The other cabins are comfortable and well specified with plenty of natural light and sensible amounts of storage.

The flybridge could do with some teak on the sole to add a touch of class but it’s a very comfortable space with a nice balance of eating area, sunpad and a good helm position where all of the electronics fold down in to the dash to keep them out of the elements when not in use.

Pros

  • Socialble layout, mix of cosy and luxurious, amazing master cabin and shower, comfortable cabins, build quality

Cons

  • Lack of hand holds in the saloon, blank GRP flybridge floor

Price as reviewed:

£3,158,000.00

Verdict

We need to get it out on the water but things look promising

Details

Displacement: 56.7 tonnes
Top Speed: 31 knots
Cabins: 4 + crew cabin
Fuel Capacity: 1210 imp gal (5500 L)
Beam: 19ft 2in (5.84m)
Cruising Speed: 28 knots
Water Capacity: 218 imp gal (990 L)
Air Draught: N/A
RCD Category: A for 20 people
Length Overall: 74ft 4in (22.68m)
Engines: Twin MAN V12 1360hp
Range: 360nm

Latest reviews

Latest videos